

倘若您有什么疑問或是對我公司有任何
的意見和建議都可通過:
的意見和建議都可通過:
公司名稱: 鞏義市西村鎮華豐給排水材料廠
公司地址: 河南省鞏義市西村開發區
電話: 0371-64033589
手機: 18638168566,13683712868
13783416000(技術)
聯系人: 王先生,位女士
郵政編碼: 451200
E-MAIL: 1696257948@qq.com
網址:http://m.shouaitao.com/
網址:http://m.shouaitao.com/
SSQ型鑄鐵伸縮器
標簽:該產品可按照客戶要求訂做,如需訂做請向客服提供您的參數表
華豐竭誠為您服務,熱線電話0371-64033589
名稱:SSQ型鑄鐵伸縮器
SSQ型鑄鐵伸縮器也稱伸縮節、膨脹節、補償器、伸縮接頭。伸縮器在一定范圍內可軸向伸縮,也能在一定的角度內克服管道對接不同軸向而產生的偏移,能方便閥門管道的安裝與拆卸,在管道允許伸縮量中可以自由伸縮,一旦越過其大伸縮量就起到限位,確保管道的安全運行。
SSQ型鑄鐵伸縮器主要為保障管道安全運行,具有以下作用:補償吸收管道軸向、橫向、角向熱變形;吸收設備振動,減少設備振動對管道的影響;吸收地震、地陷對管道的變形量。
鑄鐵伸縮器詳細介紹:
1. 該產品為各種給排水管道、水塔、水泵、水表、閥門的安裝拆換提供了極大方便,給長距離管路因溫差伸縮起到了很好的調節作用。
2. 該產品內管材分為鑄鐵( HT )、鍍鋅( DX )和鋼制( SF )三種。工作壓力分 PN6 、 PN10 、 PN16 三種。
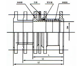
3. 安裝前須松開壓盤螺栓,將該產品拉至安裝長度,然后用對角法擰緊,切勿壓偏,如架空使用,兩端須安裝相應的固定支架。
4. 法蘭連接采用 GB4216.3 - 4126.5 標準。
5. 如選用其它規格可另行生產。
鑄鐵伸縮器用途:
伸縮器是泵、閥門,管道等設備與管道連接的新產品,通過全螺栓把它們連接起來,使其成為整體,并有一定的位移量,方便安裝。可承受管線的軸向壓力。這樣就可以在安裝維修時,根據現場安裝尺寸進行調整,在工作時,不僅提高工作效率,而切對泵、閥們等管道設備起到一定保護作用。
鑄鐵伸縮器適用介質:
本產品適用于輸送海水、淡水、冷熱水、飲用水、生活污水、原油、燃油、潤滑油、成品油、空氣、煤氣、溫度不高于250度的蒸汽和顆粒粉狀等介質。
鑄鐵伸縮器使用范圍:
由于伸縮器具有良好的綜合性能,所以它廣泛用于化工、建筑、給水、排水、石油、輕重工業、冷凍、衛生、水暖、消防、電力等基礎工程。

公稱通徑 |
*小長度L |
安裝長度L1 |
*大長度L2 |
40 |
140 |
170 |
200 |
50 |
140 |
170 |
200 |
65 |
160 |
205 |
250 |
80 |
180 |
225 |
270 |
100 |
200 |
250 |
300 |
125 |
220 |
250 |
300 |
150 |
220 |
270 |
320 |
200 |
240 |
290 |
320 |
250 |
260 |
315 |
370 |
300 |
280 |
340 |
400 |
350 |
290 |
350 |
410 |
400 |
300 |
360 |
420 |
450 |
320 |
385 |
450 |
500 |
320 |
385 |
450 |
600 |
350 |
415 |
480 |
700 |
370 |
440 |
510 |
800 |
390 |
460 |
530 |
900 |
420 |
495 |
570 |
1000 |
440 |
515 |
590 |
1200 |
490 |
570 |
650 |
更多產品詳情可來電咨詢
聯系人:王先生 13783416000 魏女士 13683712868
下一篇:RS型柔性套管式伸縮器
版權所有:華豐管道 地址:河南省鞏義市西村開發區 服務熱線:0371-64033589 管理入口E-MAIL: 1696257948@qq.com 手機: 18638168566,13783416000
網站備案/許可證號: 豫ICP備11026537號-5
豫公網安備 41910102000259號 技術支持:鞏義開啟網絡
本網站支持新廣告法,為不影響客戶瀏覽,頁面區域用詞正在排查修改,本店所有頁面絕對化用詞和功能性用詞在此聲明前全部失效,不接受不妥協任何形式的絕對化用詞和功能性用詞賠付,希望各位消費者理解,職業打假人高抬貴手。 網站備案/許可證號: 豫ICP備11026537號-5
