

的意見和建議都可通過:
網址:http://m.shouaitao.com/
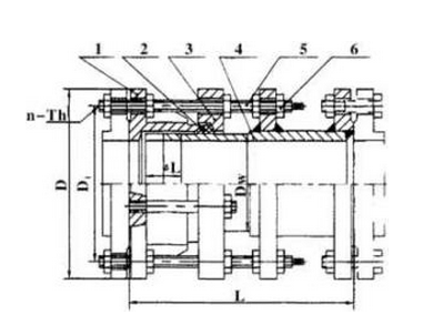
VSSJAFC(CC2F)型可拆式單法蘭松套傳力接頭
標簽:
名稱:VSSJAFC(CC2F)型可拆式單法蘭松套傳力接頭
性能特點:
VSSJAFC(CC2F)型可拆式單法蘭松套傳力接頭是在法蘭松套補償接頭的基礎上增設法蘭短管及傳力螺桿而成,次類型的補償接頭與松套補償接頭和松套限位補償接頭不同的是它的補償量是指在安裝及拆卸過程中的調節量,一旦將所有的螺母擰緊,它是剛性連接的,可以傳遞軸心力,從而保護閥門、泵等設備。
適用范圍
VSSJAFC(CC2F)型可拆式單法蘭松套傳力接頭適用于輸送海水、淡水、冷熱水、飲用水、生活污水、原油、燃油、潤滑油、成品油、空氣、煤氣、溫度不高于250度的蒸汽和顆粒粉狀等介質。
安裝簡要說明:
可拆式單法蘭松套傳力接頭適用于兩邊均與法蘭連接的管路中,安裝時調節產品兩端與法蘭的安裝長度,對角依次均勻擰緊壓蓋螺栓,使其成為一個整體,并有一定的位移量,方便安裝維修時,根據現場尺寸進行調整。在工作時可以把軸向推力傳遞至正個管道。
可拆式單法蘭松套傳力接頭的材質:主要有Q235碳鋼、不銹鋼、鑄鋼、球墨鑄鐵等。不同的用途選用不同的材質和型號。
可拆式單法蘭松套傳力接頭材料表
序號 |
名稱 |
數量 |
材料 |
1 |
本體 |
1 |
QT400-15、Q235A、ZG230-450、20 |
2 |
密封圈 |
1 |
NBR |
3 |
壓蓋 |
1 |
QT400-15、Q235A、ZG230-450、20 |
4 |
短管法蘭 |
1 |
Q235A、20、16Mn |
5 |
螺柱 |
n |
Q235A、35、1Cr18Ni9Ti |
6 |
螺母 |
5n |
Q235A、20、1Cr18Ni9Ti |
可拆式單法蘭松套傳力接頭技術參數 | ||||||||||||||||||||||||||||||||||||||||||||||||||||||||||||||||||||||||||||||||||||||||||||||||||||||||||||||||||||||||||||||||||||||||||||||||||||||||||||||||||||||||||||||||||||||||||||||||||||||||||||||||||||||||||||||||||||||||||||||||||||||||||||||||||||||||||||||||||||||||||||||||||||||||||||||||||
|
更多產品詳情可來電咨詢
聯系人:王先生 13783416000 魏女士 13683712868
網站備案/許可證號: 豫ICP備11026537號-5
