

倘若您有什么疑問或是對我公司有任何
的意見和建議都可通過:
的意見和建議都可通過:
公司名稱: 鞏義市西村鎮華豐給排水材料廠
公司地址: 河南省鞏義市西村開發區
電話: 0371-64033589
手機: 18638168566,13683712868
13783416000(技術)
聯系人: 王先生,位女士
郵政編碼: 451200
E-MAIL: 1696257948@qq.com
網址:http://m.shouaitao.com/
網址:http://m.shouaitao.com/
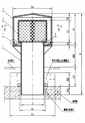
罩型通氣管
標簽:該產品可按照客戶要求訂做,如需訂做請向客服提供您的參數表
華豐竭誠為您服務,熱線電話0371-64033589


罩型通氣管系統有伸頂通氣管、主通氣管、副通氣管、結合通氣管、環形通氣管、器具通氣管、匯合通氣管及專用通氣管等類型,分別用于不同的位置,其中罩型通氣管適用于蓄水水池及水箱安裝。罩型通氣管為使排水系統內空氣流通,壓力穩定,防水封破壞而設置的與大氣相通的管道。
罩型通氣管性能:
罩型通氣管性能可分為四點:
1、將排水管道內的有毒有害氣體排放出去,以滿足衛生要求;
2、通氣管向蓄水池、水箱及排水管道內補充新鮮空氣,以減輕金屬管的腐蝕,延長使用壽命;
3、蓄水池、水箱應設置兩根以上的通氣管以提高排水系統的能力,(舉一個小例子,打點滴的時候,瓶口朝下液體要流出,必須插一根通氣管,一端通大氣,一端通液面與瓶底之間的空隙,防止管道內形成負壓,保證排水通暢)防止死水形成,串味,減輕氣壓波動幅度,保護水封,防止水封破壞。
4、能快速地將蓄水池及水箱內的水蒸氣及有害氣體排出,內置紗布紗網能有效的阻止防止病媒、昆蟲和塵埃進入以破壞水質。
罩型通氣管的規格:
型號: Z-200、Z-300、Z-400、Z-600
高度:H3=0 、H3=500、H3=1000
Z-200、H3=0高度890 、H3=500高度1380、H3=1000高度1890
Z-300、H3=0高度1000 、H3=500高度1500、H3=1000高度2000
Z-400、H3=0高度1120 、H3=500高度1620、H3=1000高度2120
Z-600、H3=0高度1450 、H3=500高度1950、H3=1000高度2450
罩型通氣管使用說明:
1、通氣管設計氣體流速為5m/s,過濾(網、布)層氣體平均流速為0.75m/s,濾網布安裝時應采用同等材料進行縫合,內罩可用無毒非金屬材料制作;
2、通氣管按覆土層厚度(H3)0.0m、0.5m、1.0m三種設計,0.0m適用于南方地區,0.5m適用于中部地區,1.0適用于寒冷地區。
3、焊接后的除銹、防腐要求根據客戶設計要求制作。
4、有條件地區通風帽可根據設計要求采用玻璃鋼或不銹鋼材料制作,以達到更好的防腐并延長使用壽命。
更多產品詳情可來電咨詢
更多產品詳情可來電咨詢
聯系人:王先生 13783416000 魏女士 13683712868
上一篇:雙法蘭不銹鋼伸縮接頭
下一篇:雙球球形補償器
版權所有:華豐管道 地址:河南省鞏義市西村開發區 服務熱線:0371-64033589 管理入口E-MAIL: 1696257948@qq.com 手機: 18638168566,13783416000
網站備案/許可證號: 豫ICP備11026537號-5
豫公網安備 41910102000259號 技術支持:鞏義開啟網絡
本網站支持新廣告法,為不影響客戶瀏覽,頁面區域用詞正在排查修改,本店所有頁面絕對化用詞和功能性用詞在此聲明前全部失效,不接受不妥協任何形式的絕對化用詞和功能性用詞賠付,希望各位消費者理解,職業打假人高抬貴手。 網站備案/許可證號: 豫ICP備11026537號-5
