

倘若您有什么疑問或是對我公司有任何
的意見和建議都可通過:
的意見和建議都可通過:
公司名稱: 鞏義市西村鎮華豐給排水材料廠
公司地址: 河南省鞏義市西村開發區
電話: 0371-64033589
手機: 18638168566,13683712868
13783416000(技術)
聯系人: 王先生,位女士
郵政編碼: 451200
E-MAIL: 1696257948@qq.com
網址:http://m.shouaitao.com/
網址:http://m.shouaitao.com/
VSSJAF(C2F)型雙法蘭傳力接頭
標簽:該產品可按照客戶要求訂做,如需訂做請向客服提供您的參數表
華豐竭誠為您服務,熱線電話0371-64033589
名稱:VSSJAF(C2F)型雙法蘭傳力接頭
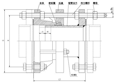
雙法蘭傳力接頭功能介紹
松套傳力接頭是在法蘭松套補償接頭的基礎上增設法蘭短管及傳力螺桿而成,次類型的補償接頭與松套補償接頭和松套限位補償接頭不同的是它的補償量是指在安裝及拆卸過程中的調節量,一旦將所有的螺母擰緊,它是剛性連接的,可以傳遞軸心力,從而保護閥門、泵等設備。

雙法蘭傳力接頭適用范圍
VSSJAF(C2F)型雙法蘭傳力接頭適用于輸送海水、淡水、冷熱水、飲用水、生活污水、原油、燃油、潤滑油、成品油、空氣、煤氣、溫度不高于250度的蒸汽和顆粒粉狀等介質。
雙法蘭傳力接頭安裝簡要說明:
VSSJAF(C2F)型雙法蘭傳力接頭適用于兩邊均與法蘭連接的管道中,安裝時調整產品兩端與法蘭的安裝長度,對角依次均勻擰緊壓螺栓,使其成為一個整體,并有一定的位移量,方便安裝維修時,根據現場尺寸進行調整在工作時,可以把軸向推力傳遞至整個管道。
PN0.6MPa的雙法蘭傳力接頭的基本尺寸 單位為毫米
公稱通徑 DN |
管子外徑 Dw |
法蘭連接尺寸 | 總長 L |
安裝尺寸 | 伸縮量 | 重量/ kg | ||||
法蘭外徑 D |
螺栓孔中心 圓直徑D1 |
螺栓孔 | ||||||||
n/個 | do | min | max | |||||||
65 | 76 | 160 | 130 | 4 | 420 | 180 | 40 | 11.8 | ||
80 | 89 | 190 | 150 | 18 | 460 | 13.5 | ||||
100 | 114 | 210 | 170 | 18.6 | ||||||
125 | 140 | 240 | 200 | 8 | 23.8 | |||||
150 | 168 | 265 | 225 | 30.4 | ||||||
200 | 219 | 320 | 280 | 36.9 | ||||||
250 | 273 | 375 | 335 | 12 | 49.6 | |||||
300 | 325 | 440 | 395 | 22 |
485 495 |
445 | 195 | 50 | 61.5 | |
350 | 377 | 490 | 445 | 79.3 | ||||||
400 | 426 | 540 | 495 | 16 | 91.2 | |||||
450 | 480 | 595 | 550 | 104.1 | ||||||
500 | 530 | 645 | 600 | 20 | 123.2 | |||||
600 | 630 | 755 | 705 | 26 | 510 | 465 | 215 | 169.8 | ||
700 | 720 | 860 | 810 | 24 | 208.9 | |||||
800 | 820 | 975 | 920 | 30 | 540 | 380 | 320 | 60 | 346.I | |
900 | 920 | 1075 | 1020 | 380.6 | ||||||
1000 | 1020 | 1175 | 1120 | 28 | 438.8 | |||||
1200 | 1220 | 1405 | 1340 | 32 | 33 | 580 | 400 | 340 | 646.7 | |
1400 | 1420 | 1630 | 1560 | 36 | 36 | 843.6 | ||||
1600 | 1620 | 1830 | 1760 | 40 | 600 | 410 | 350 | 1189.7 | ||
1800 | 1820 | 2045 | 1970 | 44 | 39 | 1394.8 | ||||
2000 | 2020 | 2265 | 2180 | 48 | 42 | 660 | 430 | 370 | 1665.5 | |
2200 | 2220 | 2475 | 2390 | 52 | 2056.7 | |||||
2400 | 2420 | 2685 | 2600 | 56 | 2350.1 | |||||
2600 | 2620 | 2905 | 2810 | 60 | 48 | 750 | 490 | 410 | 80 | 2720.4 |
2800 | 2820 | 3115 | 3020 | 64 | 3053.2 | |||||
3000 | 3020 | 3315 | 3220 | 68 | 3460.3 | |||||
3200 | 3220 | 3525 | 3430 | 72 | 3912.6 |
更多產品詳情可來電咨詢
聯系人:王先生 13783416000 魏女士 13683712868
版權所有:華豐管道 地址:河南省鞏義市西村開發區 服務熱線:0371-64033589 管理入口E-MAIL: 1696257948@qq.com 手機: 18638168566,13783416000
網站備案/許可證號: 豫ICP備11026537號-5
豫公網安備 41910102000259號 技術支持:鞏義開啟網絡
本網站支持新廣告法,為不影響客戶瀏覽,頁面區域用詞正在排查修改,本店所有頁面絕對化用詞和功能性用詞在此聲明前全部失效,不接受不妥協任何形式的絕對化用詞和功能性用詞賠付,希望各位消費者理解,職業打假人高抬貴手。 網站備案/許可證號: 豫ICP備11026537號-5
